Your search results
Diapositive 1 TitreLorem ipsum dolor sit amet consectetur adipiscing elit dolorCliquer iciDiapositive 2 TitreLorem ipsum dolor sit amet consectetur adipiscing elit dolorCliquer iciDiapositive 3 TitreLorem ipsum dolor sit amet consectetur adipiscing elit dolorCliquer ici

 
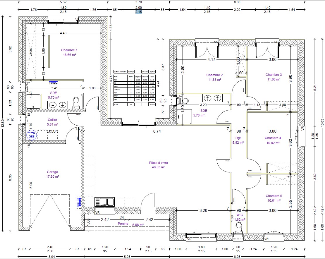
5 Chambres , 134,42 m² en U MODÈLE T6


Résumé

134,42 m2 de surface habitable + garage 17,50  m2 et un porche de5,08 m2

5 Chambres

2 salle d’eau 

Description

Grande pièce de vie avec cuisine ouverte de 48,53 m²

5 Chambres, dont un suite parentale avec dressing et salle d’eau.

Deux salle d’eau avec douche à l’italienne et meuble vasques.

WC indépendant

Cellier 5,61 m²

Garage 17,50 m²

Détails

Surface habitable : 134,42 m2

Pièces : 11

Chambre(s) : 5

Salle d’eau : 2

Pièces de vie : 48,53 m²

Chambre 1 : 16,66 m2

Chambre 2 : 11,63 m2

Chambre 3 : 11,66 m2  

Chambre 4 : 10,82 m2

Chambre 5 : 10,61 m2

Salle d’eau 1 : 5,70 m2 Salle d’eau 2 : 5,76 m2  00000000000

Cellier : 5,61 m2

WC : 1,62 m2

Dégagement : 5,82 m2

Garage : 17,50 m2

Plans du modèle



Pour plus d’informations, n’hésitez pas à nous contacter.

 

Compare Listings